Stanovanje - ČIŽIĆI - 265.000 EUR
| Lokacija | ČIŽIĆI, KRK, Primorsko-goranska |
| Cena € | 265.000 |
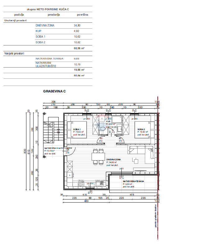
| Površina | 80 m2 |
| Število sob | 3 |
| Število kopalnic | 1 |
| Oddaljenost od morja | 0 m |
Remax Centar Nekretnina izpostavlja dvosobno stanovanje velikosti 80 m², ki se nahaja v novogradnji v Čižićih na otoku Krku. Ta nepremičnina ponuja udoben in funkcionalen bivalni prostor na mirni lokaciji, idealen za tiste, ki želijo biti blizu morja in stran od mestnega vrveža. Apartma vključuje: -Dnevna soba, povezana s kuhinjo in jedilnico, - dve spalnici, -kopalnico s talnim ogrevanjem, -pokrita terasa, -varovano parkirno mesto, Apartma se nahaja na mirni lokaciji, in le nekaj minut hoje od čudovite plaže Čižići. Območje je znano po čistem morju, zdravilnem blatu v bližnjem zalivu Soline, sproščenem vzdušju, idealnem za počitnice ali celoletno bivanje. Klimatizirane sobe, lokacija nepremičnine in kakovost gradnje zagotavljajo dolgoročno udobje in varnost. Ta nova stavba je trenutno v gradnji, predviden konec del pa je v 7. mesecu leta 2025.
ID: 1158400