Stanovanje - ČIŽIĆI - 265.000 EUR
| Lokacija | ČIŽIĆI, KRK, Primorsko-goranska |
| Cena € | 265.000 |
| Površina | 80 m2 |
| Število sob | 3 |
| Število kopalnic | 1 |
| Oddaljenost od morja | 200 m |
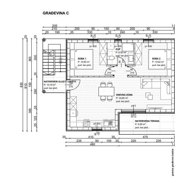
Pritlični apartma je na voljo v prodaji v luksuzni dvojni stanovanjiski stavbi (Zgradba C), ki se nahaja v osrčju enega najbolj privlačnih delov otoka Krk, v naselju Čižići, neposredno ob morju. Stavba je v fazi gradnje, zaključek del pa je predviden za začetek poletja 2025. Gre za stavbo s tremi stanovanji, vsako s svojim ločenim vhodom preko zunanjega stopnišča, kar zagotavlja zasebnost in udobje. Apartma obsega 80,84 m² in vsebuje dve spalnici, vsako površine 10,62 m², dnevno sobo v velikosti 34,80 m², kopalnico (4,92 m²) ter teraso z nadkritim vhodom. Apartma ima eno parkirno mesto, celotna stavba pa se nahaja v mirnem, vendar zelo atraktivnem delu Čižić, ki je še posebej priljubljen v poletnih mesecih zaradi bližine morja in naravne lepote. To je redka priložnost, da najdete takšno nepremičnino v prvi vrsti do morja na otoku Krk, ki ponuja ne le udobno bivanje, temveč tudi potencial za odlično poslovno priložnost v eni najbolj zaželenih destinacij na Jadranu.
ID: 1145772