Hiša - BUJE - 800.000 EUR
| Lokacija | BUJE, Istrska |
| Cena € | 800.000 |
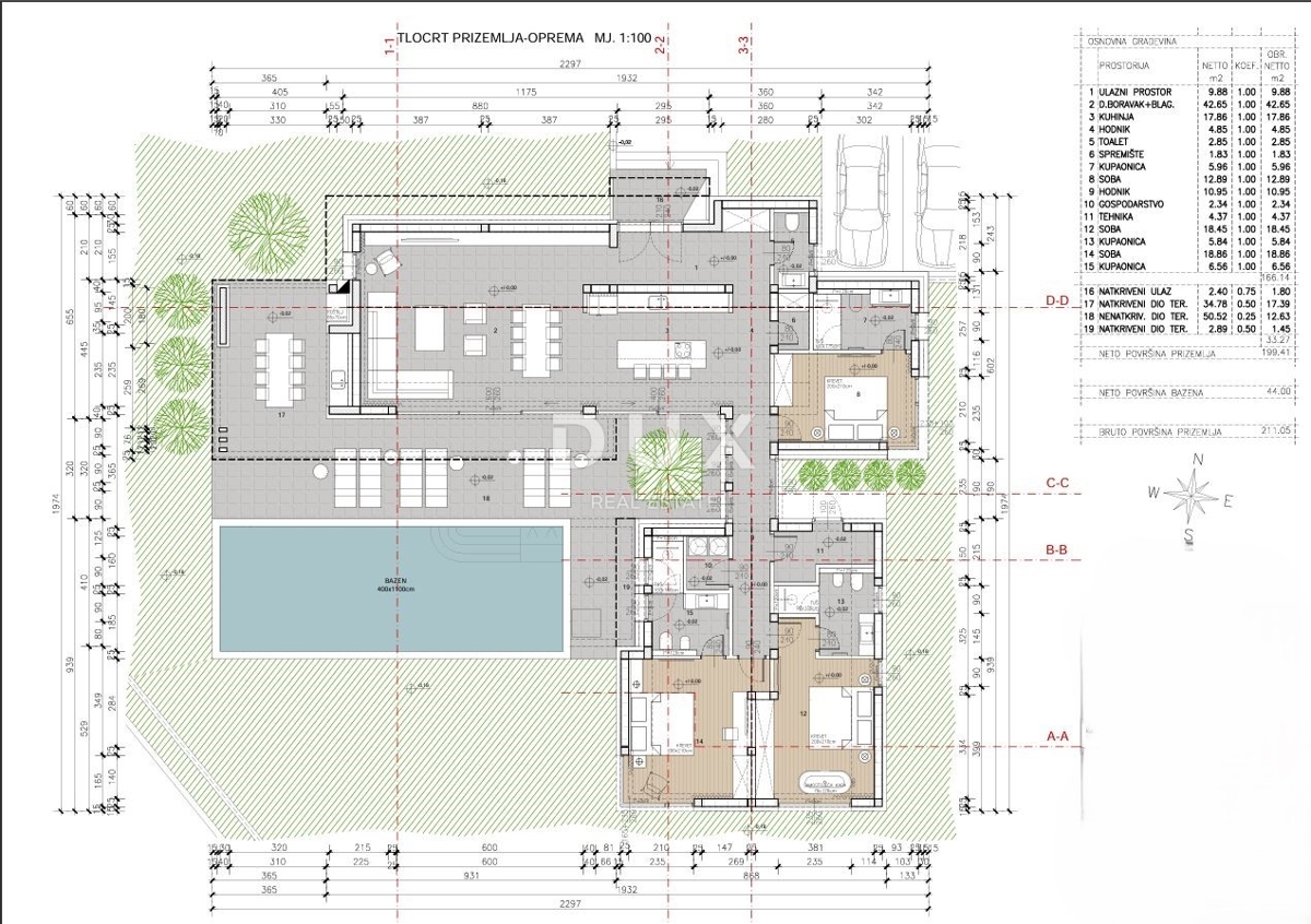
| Površina | 211 m2 |
| Število sob | 4 |
| Površina parcele | 1044 m2 |
| Število kopalnic | 4 |
| Oddaljenost od morja | 15000 m |
ISTRA, BUJE - Razkošna moderna vila z razgledom na morje, zasebno naselje Buje je slikovito istrsko mestece, ki se nahaja na hribu, znano po pristnem mediteranskem vzdušju, odlični gastronomiji in vinogradih, hkrati pa v neposredni bližini morja, Slovenije in Italije. Idealna lokacija za mirno življenje ali naložbo v turistični najem. V novem in mirnem zasebnem naselju se nahaja ta razkošna vila vrhunske gradnje, ki ponuja popolno kombinacijo zasebnosti, udobja, modernega dizajna in razgledov, ki segajo vse do morja. Celotno naselje je zasnovano kaskadno, kar zagotavlja neoviran pogled na morje za vse vile in visoko stopnjo zasebnosti za vsako vilo posebej. Vila ima bruto površino 211,05 m² in je zasnovana s poudarkom na funkcionalnosti in zračnosti prostora. Sestavljajo jo vhodna dvorana, prostorna dnevna soba, povezana z jedilnico in kuhinjo, dva hodnika, stranišče, shramba, pomožne in tehnične sobe ter tri spalnice, vsaka s svojo kopalnico, kar zagotavlja maksimalno udobje in zasebnost. Dodatno vrednost zagotavljata pokrit vhod in tri pokrite terase, idealne za bivanje na prostem skozi vse leto. Hiša je zgrajena po izjemno visokem standardu. Celotna hiša ima talno ogrevanje. Navedena cena se nanaša na zelo napredno fazo gradnje, ki vključuje dokončano fasado in urejeno okolico, nameščene vse inštalacije in vse faze do polaganja ploščic. Za popolnoma dokončano hišo je potrebna namestitev talnih in stenskih oblog (ploščic), svetil, vtičnic in stikal ter končne faze tehnologije (toplotna črpalka in bazenska tehnologija). Obstaja možnost dogovora za popolno dokončanje vseh faz po željah kupca. Površina zemljišča je 1.044 m². Vrt je skrbno zasnovan in vključuje 44 m² velik bazen s plažo, zelene površine in dve parkirni mesti. Prostor ponuja popolno zasebnost in je idealen za sprostitev, druženje in uživanje v istrskem podnebju. Dodatna prednost je, da je naprodaj tudi podjetje ob hiši, z možnostjo nakupa od fizične osebe. Možen je tudi nakup vil v sosednji bližini. Ta vila predstavlja odlično priložnost za nakup luksuzne nepremičnine v eni najbolj zaželenih regij Istre – bodisi za lastno življenje, počitnice ali kot naložbo z visokim potencialom za turistični najem. Mirna lokacija, vrhunska gradnja, velika parcela in možnost personalizacije zaključnih detajlov naredijo to ponudbo redko in izjemno dragoceno. Spoštovane stranke, provizija agencije se zaračuna v skladu s Splošnimi pogoji poslovanja: www.dux-nekretnine.hr/opci-uvjeti-poslovanja
ID: 1259201