Hiša - BUJE - 149.000 EUR
| Lokacija | BUJE, Istrska |
| Cena € | 149.000 |
| Površina | 137 m2 |
| Število sob | 4 |
| Oddaljenost od morja | 0 m |
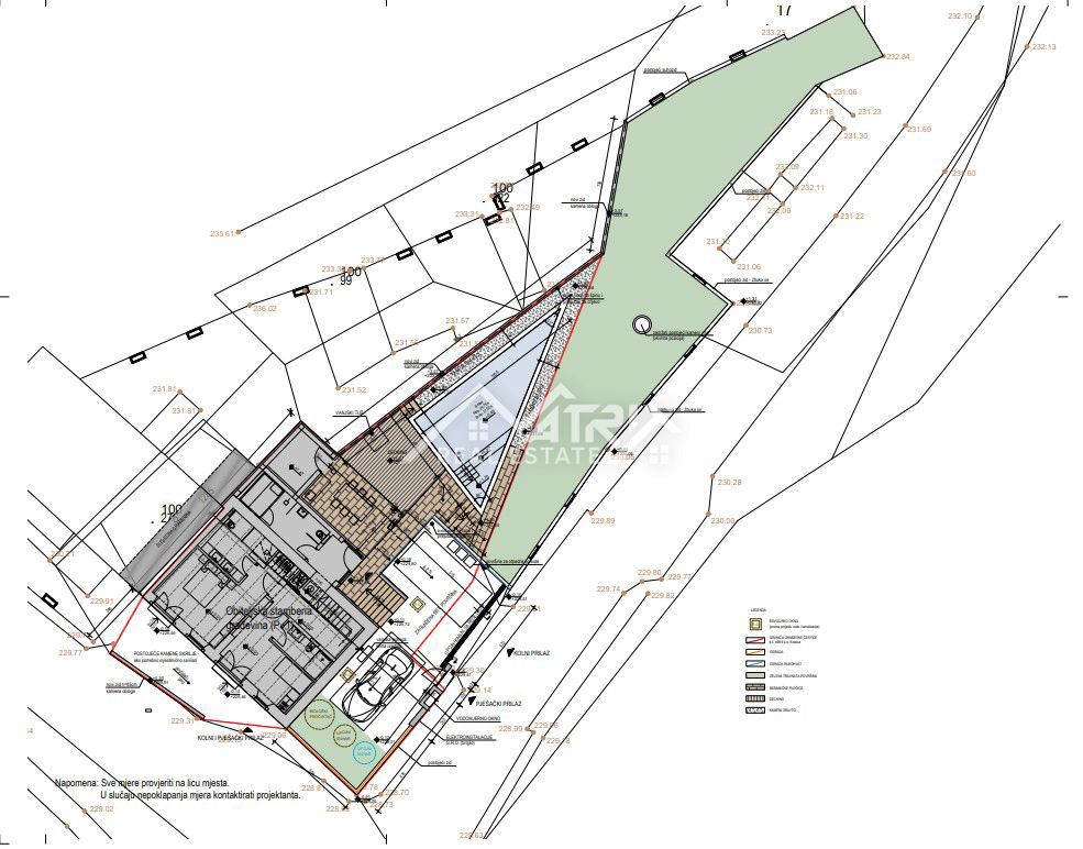
Okolica Buj – avtentična istrska kamnita hiša s pogledom na morje V ponudbi je avtentična istrska kamnita hiša, ki se nahaja v mirni vasici v okolici Buj, na izjemno atraktivni lokaciji s čudovitim panoramskim pogledom, ki sega vse do morja. Hiša obsega dve etaži – pritličje in nadstropje ter ponuja odličen potencial za prenovo po željah novega lastnika. V pritličju se nahaja prostrana konoba z visokimi stropi, ki izžareva rustikalni istrski šarm, medtem ko je v nadstropju stanovanje z dvema spalnicama. Za nepremičnino je že pripravljen premišljeno zasnovan projekt prenove z veljavnim gradbenim dovoljenjem, ki združuje tradicionalno istrsko arhitekturo s sodobnim dizajnom in tako ustvarja popolno ravnovesje med pristnostjo in udobjem. Zaradi izjemne lokacije, pogleda na morje in avtentične zasnove ta hiša predstavlja odlično priložnost – primerna kot zasebna rezidenca, počitniška hiša ali naložbena nepremičnina z velikim turističnim potencialom. Nepremičnina, ki si zasluži vašo pozornost – prava istrska zgodba, pripravljena na novo poglavje.
ID: 1232012