Hiša - BUJE - 130.000 EUR
| Lokacija | BUJE, Istrska |
| Cena € | 130.000 |
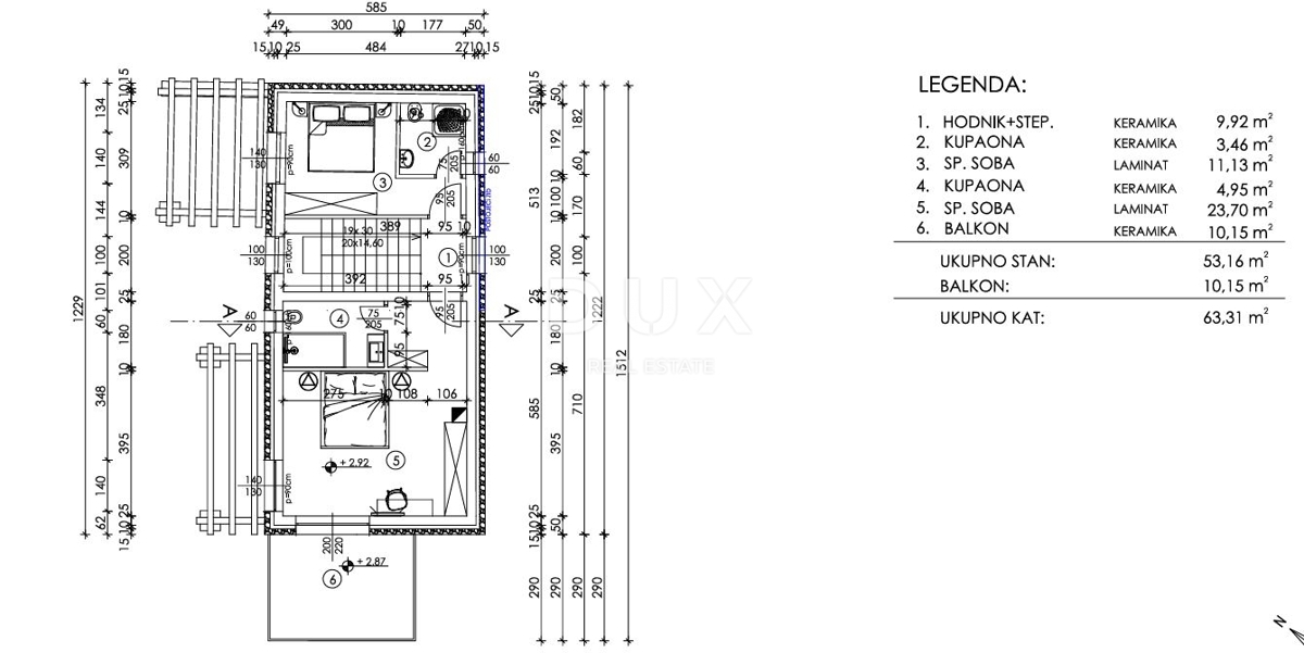
| Površina | 106 m2 |
| Število sob | 3 |
| Površina parcele | 344 m2 |
| Število kopalnic | 2 |
| Oddaljenost od morja | 17000 m |
ISTRA, MOMJAN – AVTENTIČNA KAMNITA HIŠA S PROJEKTOM OBNOVE Momjan, ki leži na nežnih gričih severozahodne Istre, je slikovito in očarljivo mesto, znano po bujnih vinogradih, stoletnih oljčnih nasadih, zgodovinskem obzidju in vrhunskih vinarnah. Kombinacija pristne istrske tradicije, nedotaknjene narave in sodobnega načina življenja ga naredi idealen kraj za mirno življenje, hkrati pa tudi privlačno lokacijo za turistične naložbe. Bližina Jadranskega morja, Poreča, Umaga in meje s Slovenijo še dodatno poudarja njegovo privlačnost. V čudovitem Momjanu se prodaja privlačna kamnita hiša z idejnim projektom. Gradbeno dovoljenje za objekt naj bi bilo izdano kmalu, medtem ko je idejni projekt že odobren pod pogoji. Po projektu hiša obsega površino 106,76 m², razporejeno v treh nadstropjih – klet, pritličje in prvo nadstropje – in vključuje zasebni bazen za popolno uživanje in sprostitev. Površina vrta je 344 m². Vsa potrebna infrastruktura – elektrika, vodovod in telefonsko omrežje – se nahaja tik ob parceli, kar omogoča enostaven in hiter priklop na vse komunalne sisteme. Dostop je omogočen po asfaltni cesti, kar še dodatno prispeva k praktičnosti in enostavnosti uporabe. Obstaja možnost nakupa še ene kamnite hiše, starinske, tik ob njej, prav tako s projektom, ki zaseda 200,21 m². Urejena je po projektu v treh nadstropjih z bazenom. Zemljišče dodatne hiše meri 517 m². Ta lokacija ponuja popolno harmonijo med nedotaknjeno naravo, popolnim mirom in pristnim istrskim načinom življenja, s čudovitim razgledom, ki se razteza čez hribe in vinograde do modrega morja v daljavi. Predstavlja odlično priložnost za tiste, ki iščejo luksuzne kamnite vile z edinstvenimi razgledi, bodisi za osebno bivanje bodisi kot naložbo v turistični najem. Momjan s svojo prvotno lepoto in pristnim duhom Istre ponuja najdragocenejše – mir, eleganco in resnično mediteransko vzdušje. Spoštovane stranke, provizija agencije se obračunava v skladu s Splošnimi pogoji poslovanja: www.dux-nekretnine.hr/opci-uvjeti-poslovanja
ID: 1228245