Vse nepremičnine
Hiše
Stanovanja
Parcele
Poslovni prostori
Regija
...
Zagrebška
Krapinsko-zagorska
Sisačko-moslavačka
Karlovška
Varaždinska
Koprivniško-križevska
Bjelovarsko-bilogorska
Primorsko-goranska
Ličko-senjska
Virovitiško-podravska
Požeško-slavonska
Brodsko-posavska
Zadarska
Osiješko-baranjska
Šibeniško-kninska
Vukovarsko-sremska
Splitsko-dalmatinska
Istrska
Dubrovniško-neretvanska
Međimurska
Mesto Zagreb
Mesto
...
MURTER
SKRADIN
ŠIBENIK
VODICE
DRNIŠ
ROGOZNICA
RUŽIĆ
KNIN
UNEŠIĆ
PROMINA
PIROVAC
PRIMOŠTEN
TRIBUNJ
BISKUPIJA
Mesto
...
BILICE
BORAJA
BRODARICA
DANILO
DANILO BIRANJ
DONJE POLJE
DUBRAVA KOD ŠIBENIKA
GREBAŠTICA
JADRIJA
JADRTOVAC
KAPRIJE
KONJEVRATE
KRAPANJ
LOZOVAC
RASLINA
ŠIBENIK
VRPOLJE
ZABLAĆE
ZATON
ZLARIN
ŽABORIĆ
ŽIRJE
Tip
Vse
Hiše
Stanovanja
Parcele
Poslovni prostori
Cena
od
do
Oddaljenost od morja (m)
od
do
Sort
Novejši
Starejši
Cenejši
Dražji
Poišči
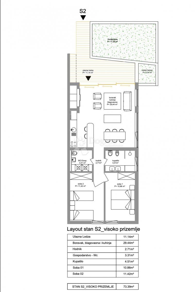
Stanovanje - BRODARICA - 258.055 EUR
Previous
Next
Lokacija
BRODARICA, ŠIBENIK, Šibeniško-kninska
Cena €
258.055
Površina
73 m
2
Število sob
3
Število kopalnic
1
Oddaljenost od morja
450 m
ID: 1218785
Pošlji sporočilo
Ime
E-mail
Telefon
9 + 7 =
Sporočilo
Pošlji
Opusti