Vse nepremičnine
Hiše
Stanovanja
Parcele
Poslovni prostori
Regija
...
Zagrebška
Krapinsko-zagorska
Sisačko-moslavačka
Karlovška
Varaždinska
Koprivniško-križevska
Bjelovarsko-bilogorska
Primorsko-goranska
Ličko-senjska
Virovitiško-podravska
Požeško-slavonska
Brodsko-posavska
Zadarska
Osiješko-baranjska
Šibeniško-kninska
Vukovarsko-sremska
Splitsko-dalmatinska
Istrska
Dubrovniško-neretvanska
Međimurska
Mesto Zagreb
Mesto
...
ZAGREB
STUBIČKE TOPLICE
Mesto
...
ADAMOVEC
BELOVAR
BIDROVEC
BIJENIK
BIZEK
BLATO
BOGDANI
BORČEC
BORONGAJ
BORONGAJSKI LUG
BOROVJE
BOTINEC
BRANOVEC
BREBERNICA
BRESTJE
BREZOVICA
BRITANAC
BUNDEK
BUZIN
CENTAR
CVJETNO NASELJE
ČRNOMEREC
ČUČERJE
ČULINEC
DANKOVEC
DEDIĆI
DEMERJE
DOBRODOL
DOLEC
DONJA DUBRAVA
DONJE SVETICE
DONJE VRAPČE
DONJI BUKOVEC
DONJI ČEHI
DONJI DRAGONOŽEC
DONJI GRAD
DONJI TRPUCI
DRENČEC
DREŽNIK BREZOVIČKI
DUBEC
DUBRAVA
DUGAVE
ĐURĐEKOVEC
FERENŠČICA
FRATERŠČICA
GAIŠĆE
GAJEVO
GAJNICE
GLAVNICA GORNJA
GLAVNIČICA
GOLI BREG
GORANEC
GORNJA DUBRAVA
GORNJE VRAPČE
GORNJI BUKOVEC
GORNJI ČEHI
GORNJI DRAGONOŽEC
GORNJI GRAD
GORNJI LUKŠIĆ
GORNJI TRPUCI
GRAČANI
GRAD MLADIH
GRANA
GRANČARI
GRANEŠINA
GRMOŠČICA
HORVATI
HRAŠĆE TUROPOLJSKO
HRVATSKI LESKOVAC
HUDI BITEK
IVANJA REKA
JAKUŠEVEC
JANKOMIR
JARUN
JELENOVAC
JEŽDOVEC
KAJZERICA
KAPTOL
KAŠINA
KNEŽIJA
KOBILJAK
KOZARI BOK
KOZARI PUT
KRALJEVAC
KRALJEVEČKI NOVAKI
KRUGE
KSAVER
KUPINEČKI KRALJEVEC
KUSTOŠIJA
LANIŠTE
LAŠĆINA
LUČKO
LUKŠIĆ
LUŽAN
MAKSIMIR
MALEŠNICA
MARKUŠEVEC
MARTINOVKA
MEDVEŠČAK
MIKULIĆI
MIROGOJ
MIROŠEVEC
MLINOVI
MORAVČE
NOVI ZAGREB
NOVOSELEC
ODRA
ODRANSKI OBREŽ
OPOROVEC
PANTOVČAK
PARUŽEVINA
PERJAVICA
PEŠČENICA
PETRUŠEVEC
PLANINA DONJA
PODSUSED
POPOVEC
PREČKO
PREKRIŽJE
PREKVRŠJE
PREPUŠTOVEC
RAVNICE
REMETE
REMETINEC
RESNIČKI GAJ
RESNIK
RETKOVEC
RIBNJAK
RIM
RUDEŠ
SAVICA
SAVICA-ŠANCI
SAVSKA OPATOVINA
SAVSKI GAJ
SELČINA
SESVETE
SESVETSKA SELA
SESVETSKI KRALJEVEC
SIGEČICA
SIGET
SLOBOŠTINA
SOBLINEC
SOPNICA
SOPOT
SREBRNJAK
SREDIŠĆE
SREDNJACI
STAGLIŠĆE
STARJAK
STENJEVAC
STRMEC
STRUGE
STUDENTSKI GRAD
SUSEDGRAD
SVETA KLARA
SVETI DUH
ŠALATA
ŠAŠINOVEC
ŠESTINE
ŠESTINSKI DOL
ŠESTINSKI KRALJEVEC
ŠESTINSKI VRH
ŠPANSKO
TEŠKOVEC
TRAVNO
TREŠNJEVKA
TRNAVA
TRNOVČICA
TRNSKO
TRNJE
TROKUT
TRSTENIK
TUŠKANAC
UTRINA
VELIKO POLJE
VOLTINO
VRAPČE
VRBANI
VRBIK
VRHOVEC
VUGROVEC DONJI
VUGROVEC GORNJI
VUKOMEREC
VURNOVEC
ZADVORSKO
ZAGREB
ZAPRUĐE
ZELENGAJ
ŽITNJAK
Tip
Vse
Hiše
Stanovanja
Parcele
Poslovni prostori
Cena
od
do
Oddaljenost od morja (m)
od
do
Sort
Novejši
Starejši
Cenejši
Dražji
Poišči
Hiša - BRESTJE - 497.000 EUR
Previous
Next
Lokacija
BRESTJE, ZAGREB, Mesto Zagreb
Cena €
497.000
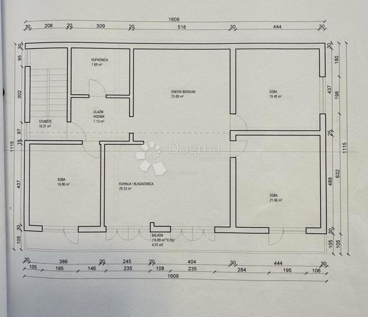
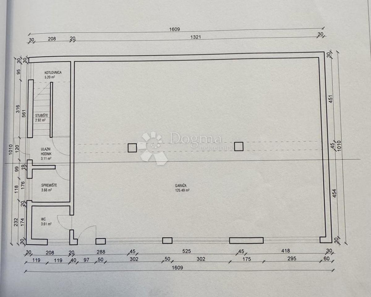
Površina
425 m
2
Število sob
8
Površina parcele
379 m
2
Število kopalnic
4
Bližina prevoza
DA
Oddaljenost od morja
0 m
ID: 1259853
Pošlji sporočilo
Ime
E-mail
Telefon
4 + 9 =
Sporočilo
Pošlji
Opusti