Stanovanje - BORIK - 1.561.652 EUR
| Lokacija | BORIK, ZADAR, Zadarska |
| Cena € | 1.561.652 |
| Površina | 181 m2 |
| Število sob | 3 |
| Število kopalnic | 2 |
| Blizu plaže | DA |
| Oddaljenost od morja | 0 m |
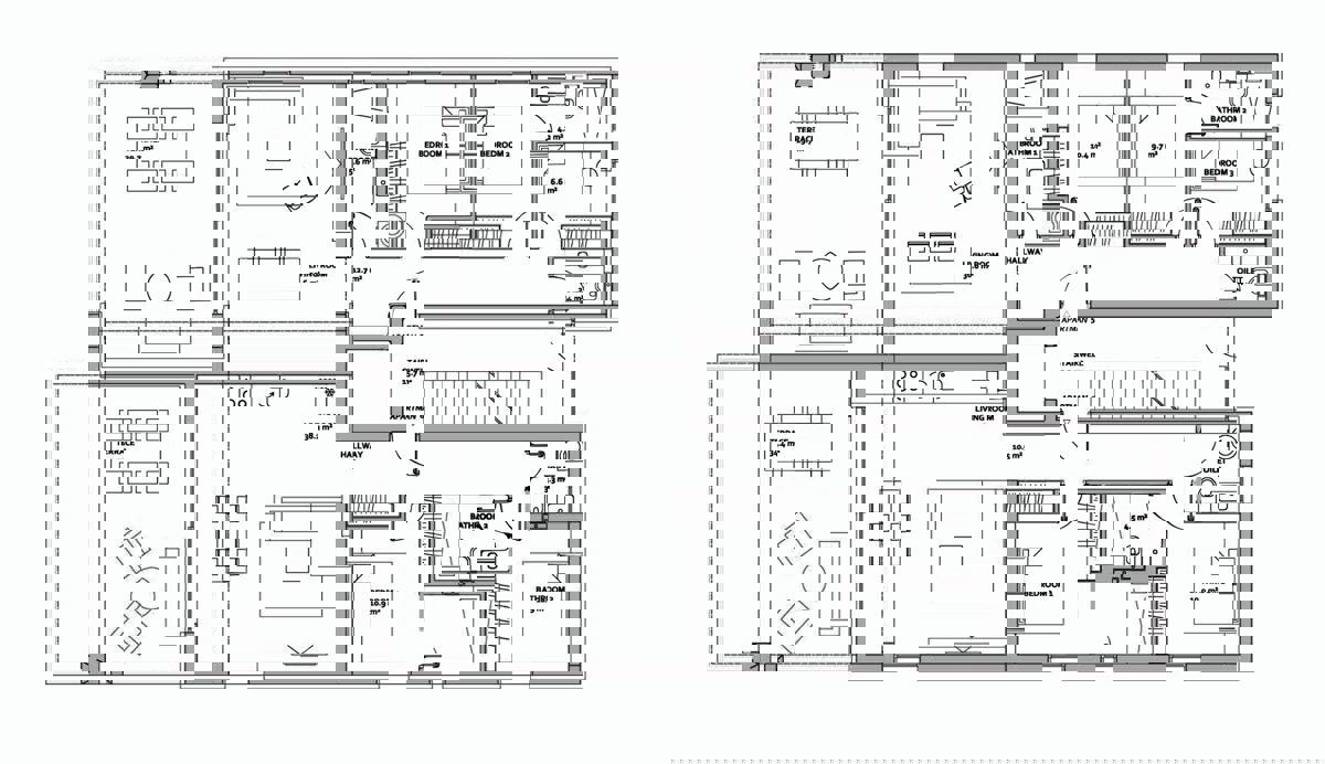
V zadarskem predelu Borik, najprestižnejšem stanovanjskem območju mesta, se nahaja ekskluzivna urbana vila s skupno šestimi luksuznimi stanovanji, v prvem nizu ob morju. Projekt združuje vrhunski dizajn, neoviran panoramski pogled na morje in otoke ter mediteranski mir. Vsako stanovanje ponuja edinstveno izkušnjo življenja ob morju, bodisi kot stalni dom, počitniška nepremičnina ali varna dolgoročna investicija. Stanovanja v pritličju omogočajo neposreden dostop do plaže, s privatnimi vrtovi, bazeni in terasami, idealno postavljenimi za nepozabne sončne zahode. V prvem nadstropju se nahajajo moderna, prostorna stanovanja s panoramskimi terasami, uokvirjenimi z elegantnimi nastavljivimi aluminijastimi žaluzijami, medtem ko stanovanja v drugem nadstropju ponujajo pokrite terase s pogledom na morje in ekskluzivne strešne terase s fantastičnim razgledom. Vsaka strešna terasa obsega 120 m², na katerih se nahajajo jacuzzi, letna kuhinja, zunanja kopalnica ter lounge in jedilni koti pod bioklimatsko pergolo, kar jo dela popolno mesto za uživanje. Premium vsebine Vsa stanovanja so opremljena z zasebnim dvigalom, pametnim sistemom upravljanja, polnilnimi postajami za električna vozila, podzemno garažo in shrambo, kar zagotavlja najvišjo raven udobja in varnosti. Zanesljiv razvijalec Projekt razvija podjetje, ki gradnjo v celoti financira z lastnim kapitalom, s čimer zagotavlja popoln nadzor, finančno stabilnost in popolno neodvisnost od zunanjih pritiskov. V sodelovanju s skrbno izbranimi izvajalci in obrtniki se vsak projekt izvede z brezkompromisno kakovostjo, spoštovanjem rokov in popolno transparentnostjo. Borik – premium četrt v Zadru Borik je najbolj iskana stanovanjska četrt v Zadru, ki združuje mirno okolje z bližino zgodovinskega jedra. Nahaja se le nekaj minut od centra mesta, v bližini so trgovine, šole in vsa potrebna infrastruktura. Četrt se ponaša z urejenimi plažami z modro zastavo in Marino Borik, idealno za lastnike jaht in ljubitelje navtike. Življenje v Boriku predstavlja popolno kombinacijo mediteranskega šarma in urbanega udobja, z wellness centri, športnimi igrišči, vrhunskimi restavracijami in ekskluzivnimi beach bari. Kontaktirajte nas za več informacij ali za dogovor o zasebnem ogledu. OPIS STANOVANJA Stanovanje S-6 – 2. nadstropje – bivalna površina 82,53 m² (2 spalnici + 2 kopalnici + WC) + loža (24 m²) + strešna terasa (119 m²) + shramba (7,34 m²) + dve garažni parkirni mesti št. 1 in 2; skupna neto obračunska površina 181,38 m² = 1.561.652,50 EUR
ID: 1244695