Parcela - BARBAN - 99.000 EUR
| Lokacija | BARBAN, Istrska |
| Cena € | 99.000 |
| Površina parcele | 784 m2 |
| Blizu plaže | DA |
| Oddaljenost od morja | 0 m |
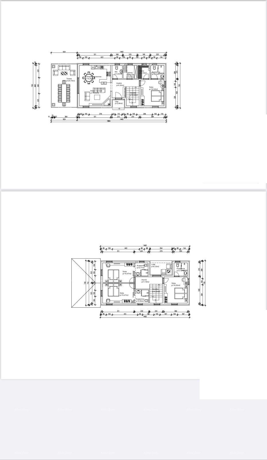
Blizu Barbana! Ponudba je gradbeno zemljišče, ob asfaltni cesti. Je pravokotne oblike. Projekt in gradbeno dovoljenje za gradnjo hiše, pritličje in nadstropje. Mirna lokacija. INFO: azra@almadominvest.com +385 91 6115706 jelena@alma-nekretnine.com +385 98 323 264
ID: 1258829