Parcela - BARBAN - 42.000 EUR
| Lokacija | BARBAN, Istrska |
| Cena € | 42.000 |
| Površina | 566 m2 |
| Oddaljenost od morja | 0 m |
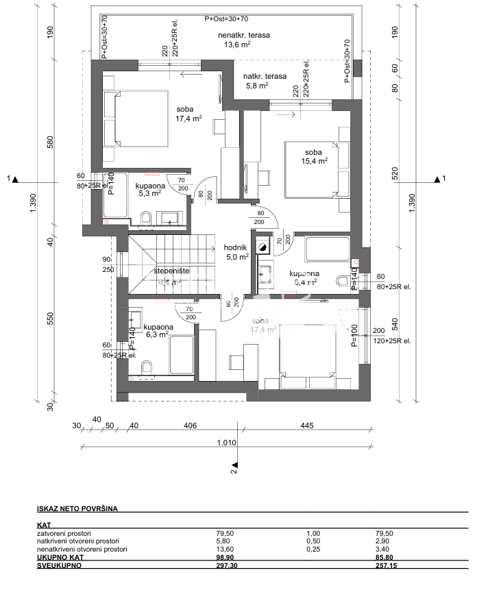
Gradbeno zemljišče površine 566 m2, locirano v Barbanu, ponuja odlično priložnost za vlaganje ali razvoj lastnega projekta. Parcela je klasificirana kot gradbeno zemljišče, kar omogoča izvedbo različnih gradbenih zamisli v skladu z veljavnim prostorskim načrtom. Ta nepremičnina izstopa z atraktivno lokacijo v Barbanu, kar ji daje dodatno vrednost. Barban je znan po svojem mirnem okolju in prijetnem ambientu, zaradi česar je ta parcela privlačna za tiste, ki iščejo prostor za gradnjo stanovanjske hiše ali investiranje na območju z razvojnim potencialom. Zaradi svoje gradbene namembnosti in lege je zemljišče primerno za gradnjo družinske hiše ali drugih objektov v skladu z lokalnimi predpisi. Dostop do osnovne infrastrukture je odvisen od lokalnih pogojev. Izdelan je idejni projekt za dvostanovanjsko hišo s kletjo, pritličjem in prvim nadstropjem skupne neto površine 297 m2 ter bazenom velikosti 29 m2. Priključek na vodo je plačan. Lastniški odnosi in status zemljišča so določeni z gradbeno klasifikacijo, za vsako načrtovano gradnjo pa je potrebno upoštevati veljavne predpise in pridobiti ustrezna dovoljenja. Vabimo vas, da razmislite o tej parceli kot odlični možnosti za uresničitev svojih načrtov, z dodatno prednostjo lokacije v Barbanu in možnostjo razvoja po lastnih potrebah.
ID: 1259267