Parcela - BARBAN - 110.000 EUR
| Lokacija | BARBAN, Istrska |
| Cena € | 110.000 |
| Površina parcele | 784 m2 |
| Blizu plaže | DA |
| Oddaljenost od morja | 0 m |
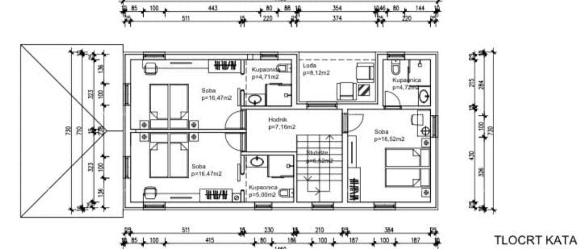
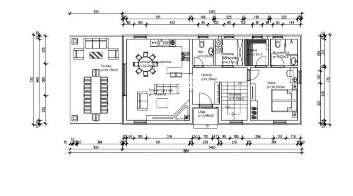
Prodamo gradbeno zemljišče velikosti 784m2 z gradbenim dovoljenjem za gradnjo družinske hiše. Komunale so plačane. Zemljišče je v čudoviti naravi obdano z zelenjem. Zemljišče ima urejen asfaltni dostop. Po projektu bi na tem zemljišču stala dvonadstropna hiša, ki bi jo sestavljali pokrit vhod, hodnik, stopnišče, kuhinja z jedilnico, dnevna soba, spalnica s kopalnico, ločen WC, savna, pralnica in prostorna pokrita terasa v pritličju. Zgornjo etažo hiše bi sestavljali hodnik, tri spalnice, vsaka s svojo kopalnico, in loža. Na parceli bi bil bazen z 2 parkirnima mestoma. Lastništvo je urejeno 1/1. Cena 110.000 + DDV Azra Valjevac +385 91 611 5706 +385 98 420 885 azra@almadominvest.com
ID: 1237382