Hiša - BARBAN - 462.500 EUR
| Lokacija | BARBAN, Istrska |
| Cena € | 462.500 |
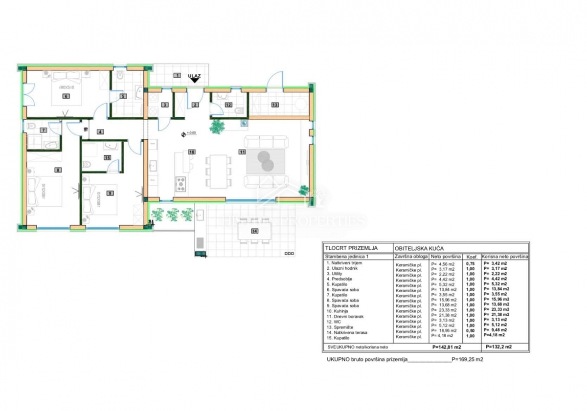
| Površina | 132 m2 |
| Število sob | 4 |
| Površina parcele | 600 m2 |
| Število kopalnic | 4 |
| Oddaljenost od morja | 13000 m |
Ta izjemno lepa enonadstropna hiša z bazenom sodobne zasnove, skrbno zasnovanim vrtom in vrhunsko organizacijo prostora se nahaja na mirni lokaciji s čudovitim razgledom na naravo. Projekt je osredotočen na funkcionalnost, kakovostne materiale in prijetno bivanje s pozornostjo do detajlov. Hiša je sestavljena iz vhodne dvorane, ki vodi v odprt dnevni prostor s kuhinjo in jedilnico, poln naravne svetlobe, 3 spalnic, vsaka s svojo kopalnico (en-suite), dodatnega stranišča, utilityja za pralni in sušilni stroj ter ločene notranje shrambe. Na dvorišču ob bazenu se nahaja tudi pomožni objekt z zunanjim straniščem, tušem in shrambo, na parceli pa je zagotovljeno zasebno parkirišče. Vse je urejeno v enem nadstropju, brez stopnic, s poudarkom na enostavnosti gibanja in dolgoročnem udobju. Celotna hiša je klimatizirana in opremljena s talnim ogrevanjem. Med gradnjo je možno sodelovati pri izbiri določenih elementov glede na želje kupca, trenutno so na voljo 3 hiše s podobnim konceptom in zasnovo. Zaključna obdelava fasade je prepuščena izbiri bodočega lastnika, kar omogoča personalizacijo po lastnem okusu. Cena vključuje DDV in kupec je oproščen plačila davka na nepremičnine. Ta edinstvena enonadstropna hiša ponuja idealno kombinacijo praktičnosti in estetske privlačnosti, zaradi česar je odlična izbira za družinsko življenje, luksuzni najem ali osebno oazo miru stran od mestnega vrveža. Za dodatne informacije nas kontaktirajte in pravočasno rezervirajte svojo idealno hišo. Ogled nepremičnine je možen le s podpisano pogodbo o posredovanju, ki je podlaga za nadaljnja dejanja v zvezi s kupoprodajo in plačilom provizije v skladu z Zakonom o posredovanju v prometu z nepremičninami. Pri kupoprodaji znaša posredniško nadomestilo 3 % brez DDV in se zaračuna kupcu in prodajalcu ob sklenitvi predpogodbe/kupoprodajne pogodbe.
ID: 1258969