Stanovanje - BANJOLE - 450.000 EUR
| Lokacija | BANJOLE, MEDULIN, Istrska |
| Cena € | 450.000 |
| Površina | 106 m2 |
| Število sob | 3 |
| Število kopalnic | 2 |
| Blizu plaže | DA |
| Oddaljenost od morja | 0 m |
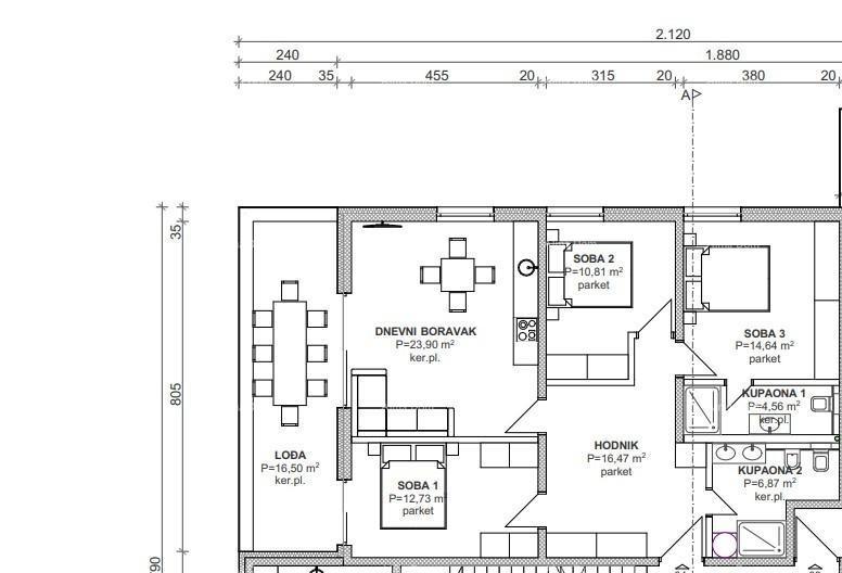
Blizu Banjol! Luksuzna novogradnja! Stanovanje 4, 1. nadstropje - 106,48 m2, obsega naslednje prostore: - prostoren predprostor 16,47 m2, - kuhinja z jedilnico in dnevno sobo - 23,9 m2, ki vodi na veliko ložo 16,50 m2 s pogledom na morje - spalnice 10,81 m2, - spalnice 12,73 m2 z izhodom na ložo - spalnice 14,64 m2 z lastno kopalnico 4,56 m2 - kopalnice 6,87 m2. Skupna površina stanovanja brez terase je 89,98 m2 Stanovanju pripada parkirno mesto pred stavbo. V vseh prostorih je talno ogrevanje, vsak prostor pa ima svoj termostat za regulacijo temperature. V dnevni sobi je digitalni termostat, ki ga lahko vklopite/izklopite preko mobilne naprave. Vsaka soba ima klimatsko napravo Mitsubishi. Okna so troslojna z alu mizarstvom. Vsa okna imajo električne žaluzije in komarnike. Objekt je izoliran s toplotno fasado 15 cm. Informacije: +385 91 611 5706 azra@almadominvest.com +385 98420885 www.almadom.com
ID: 1246903